【對比】圓筒洗砂機與葉輪式洗砂機工作原理、價格
中譽鼎力近年來主要生產的洗砂機設備是葉輪輪斗式洗砂機設備,這種洗砂機設備的生產和使用得益于中2000年1月1日土資源部就頒布的《關于加強河道采砂監督管理工作的通知》以及2001年頒布的《長江河道采砂管理條例》用于規范河砂開采以及習近平主席對“美麗中建設”號召的發起和重視。
河沙的在過去某些地區無節制的開采和生產,加重了當地生態環境的破壞。其中包括水域生態環境破壞,周圍河道的破壞,以及岸上綠地的破壞,這些使得河道河床下降,河道堵塞,水生物減少,水質變差等問題凸顯并嚴重起來。因此,具有相似建筑砂石效果的人工砂在建筑行業和工業制砂域中流行開來。

制砂生產中我們的制砂機設備型號多樣,生產的物料種類和產量更是不同。為了人工砂石中的泥土等雜質提高人工砂石的質量和粒型,礦山設備技術人員了洗砂機設備。洗砂機設備種類也很豐富,包括葉輪式洗砂機、圓筒洗砂機、螺旋式洗砂機等。圓筒洗砂機設備和葉輪式洗砂機設備的原理和價格優勢怎樣的呢?
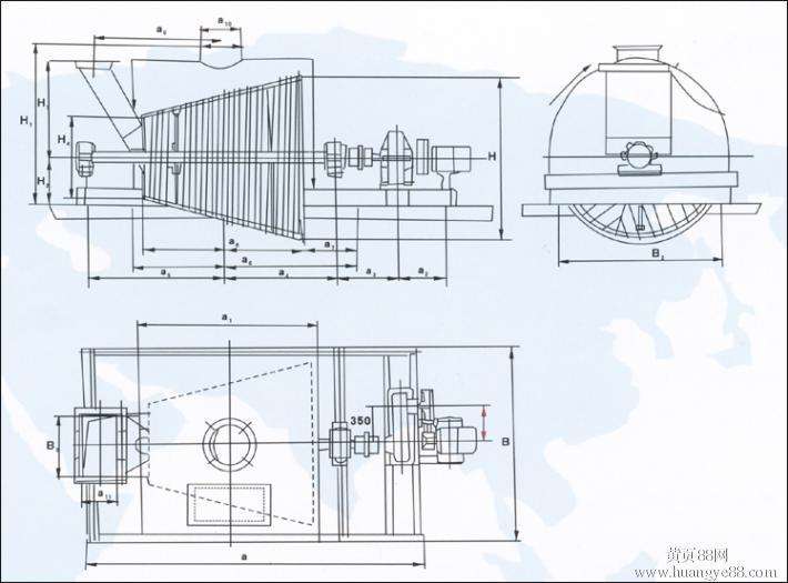
圓筒洗砂機

從圓筒洗砂機的外形來看,它長得像一個管道,只是負責將物料進行運輸。但是圓筒洗砂機設備的內部結構卻很是豐富,有螺旋式的葉片進行物料的輸送以及長長的注水裝置進行物料的清洗。
圓筒洗砂機工作原理

工作時,物料進入圓筒洗砂機設備在葉輪的連續翻轉下將物料中的泥土、硬質物料等雜質進行分離。同時,圓筒洗砂機設備中還會注入水,在泥土的雜質在圓筒壁上貼合或者與砂石分離時,水將會把砂石表面的泥土進一步清理生產。之后在螺旋式翻滾之下泥沙將會隨水流帶出洗砂機設備,高質量的砂石物料會在另一個出口隨輸送機運送至成品料堆。
圓筒洗砂機設備性能特點
由于圓筒洗砂機設備封閉式的結構特點,生產時物料的外溢現象少。長形的設備形狀另一方面節省了場地之間的運輸成本。葉輪的旋轉速度可以通過電機的功率大小進行調節,進一步控制物料的清洗效率和輸送效率。
葉輪式洗砂機設備
葉輪式洗砂機是一種的洗砂機設備,從外形來看葉輪式洗砂機設備較圓筒洗砂機設備更小些,呈立體型。但是葉輪式洗砂機設備的生產效率很高,清洗的物料質量優良。
葉輪式洗砂機設備工作原理

在電機的帶動下,葉輪式洗砂機設備通過齒輪進行輪斗的翻轉運動,物料進入洗砂機設備后先在輪斗的高速旋轉下進行離心分離土石等砂石雜質,之后會有的水流作用將物料中的水汽進行分離生產。之后雜質將會在水流的帶動下排出設備,同時提煉出高質量的砂石物料。
葉輪式洗砂機設備性能特點
葉輪式洗砂機設備旋回式的洗砂生產,能夠減少砂石的流失。通過葉輪的翻轉進行物料的反復清洗,生產的物料質量高產量大。底座中大容量的洗砂槽了設備的產量。通過物料之間的相互研磨生產,物料的質量提高。后有水流的沖擊作用物料的質量更高。(洗砂機的水可以回收再利用)結構簡單設備操作和運行更方便。
洗砂機設備的價格
洗砂機設備的價格受到多種因素的影響,有成本價占80%、市場上對設備的需求度5%、廠家的信譽3%、設備的服務5%、科技含量4%、以及其他3%。設備的不同類型和質量將會有著不一樣的報價,雖然中譽鼎力不生產圓筒洗砂機設備,但是我們能夠我們的葉輪洗砂機設備的質量和價格的穩定。同時我們的設備銷售和安裝售后服務方面都有各自專門的技術人員進行指導。

















